A period Cotswold farmhouse has submitted plans for a proposed co-working space in a barn complex.
Located on the outskirts of Stonehouse, the Grade II listed Welches Farm recently underwent a renovation before being sold for £3.4 million by Savills in July 2022.
The current owners wish to repurpose the barns, which have no present agricultural use.
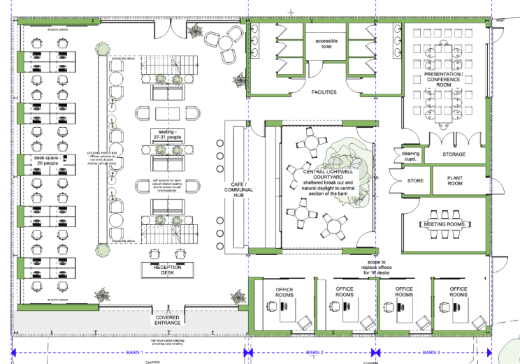
Banbury-based William Green Architects have proposed a scheme comprising of a front desk reception zone, 20 workstations, café, conference and meeting room.
Upstairs, there are plans for more workstations on a mezzanine floor, sitting adjacent to the central lightwell courtyard.
The proposed project would see the existing complex clad in timber with a roof of black corrugated metal and powder-coated windows.
Floorplan of the proposed Welches Barn
Robert Beale, senior planner at Morgan Elliot Planning, said: “Welches Barn is of modern construction, comprising three interconnected buildings with a total floor area of 510 sqm.
“The site is largely flat, and established hedgerows enclose the perimeter.”
Beale added: “Welches Farm is a former working farm that has since been converted for residential use.
“The complex includes a number of repurposed agricultural buildings, including converted cowsheds and a former threshing barn.
“The approach to the new external appearance has been designed simply to maintain an agricultural vernacular and to adapt the buildings to accommodate the new commercial use”.
Standish Parish Council has been consulted on its views and asked to respond by March 23.
© Western Whistle (powered by ukpropertyforums.com).
This article and its contents are the intellectual property of UK Property Forums and may not be reproduced, distributed, or used in any form without prior written permission. The views expressed are those of the author(s) and do not constitute legal or professional advice.












