
News
LatestAnger at East West Rail plans for maintenance depot
East West Rail’s (EWR) plans for a maintenance depot in Buckinghamshire village have been...

News
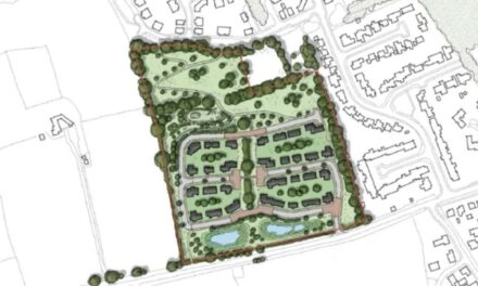
LatestPlanning approved for 191-home Redrow scheme in Shenfield
Housebuilder Redrow Eastern has acquired a 24.3-acre site in Shenfield, Essex. Full planning...

News
LatestRichmond approves new homes replacing garages at Sion Park
The Richmond Planning Committee has approved a proposal by Moreland Residential Ltd to demolish 20...
News
LatestIndurent secures 94,000 sq ft pre-let on Avonmouth sheds
Indurent has secured pre-lets with an undisclosed major UK grocery retailer and Vision Vehicles at...
EVENT NEWS ›
Event News
LatestBerksProp Awards 2025: the full list of winners
The best property professionals in Berkshire were given recognition on Thursday when more than 200...
NEWS
Transforming Oxfordshire into a breeding ground for unicorns
Ahead of next year’s OxProp Summit in March, UK Property Forums teamed up with Sladen...
Anger at East West Rail plans for maintenance depot
East West Rail’s (EWR) plans for a maintenance depot in Buckinghamshire village have been...
Planning approved for 191-home Redrow scheme in Shenfield
Housebuilder Redrow Eastern has acquired a 24.3-acre site in Shenfield, Essex. Full planning...
Latest release of homes at Horlicks Quarter
A collection of more than 100 new homes is to be released at the Horlicks Quarter in Slough. The...
Agreement signed for Station Gateway in Stevenage regeneration scheme
Station Gateway is the most recent element of the wider Stevenage town centre regeneration. The...










































