Tag: carterton
Sale and lease back deal secured by Savills
Posted by Alan Bunce | Sep 7, 2021 | Deals, Industrial, News, Oxfordshire, Retail, Thames Tap | 0 |
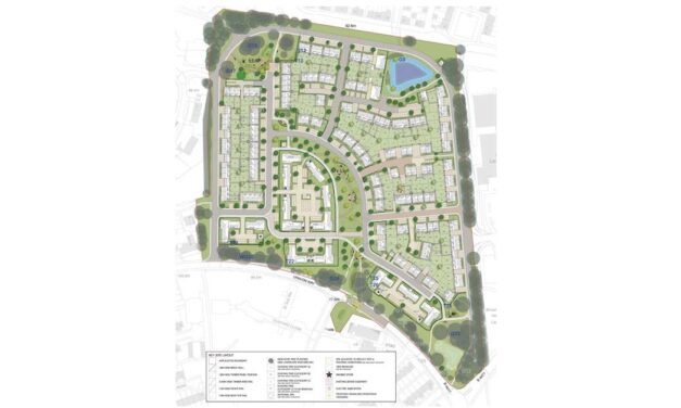
82 homes planned for former MoD site
by Alan Bunce | Aug 7, 2024 | Development, New Build, New Homes, News, News, Oxfordshire, Residential, Thames Tap, Thames Valley | 0 |
Plans for 82 homes at Carterton have been submitted to West Oxfordshire District Council....
Read MoreSale and lease back deal secured by Savills
by Alan Bunce | Sep 7, 2021 | Deals, Industrial, News, Oxfordshire, Retail, Thames Tap | 0 |
Savills has completed a £2.4 million sale and lease back deal for three units at Carterton in...
Read More






