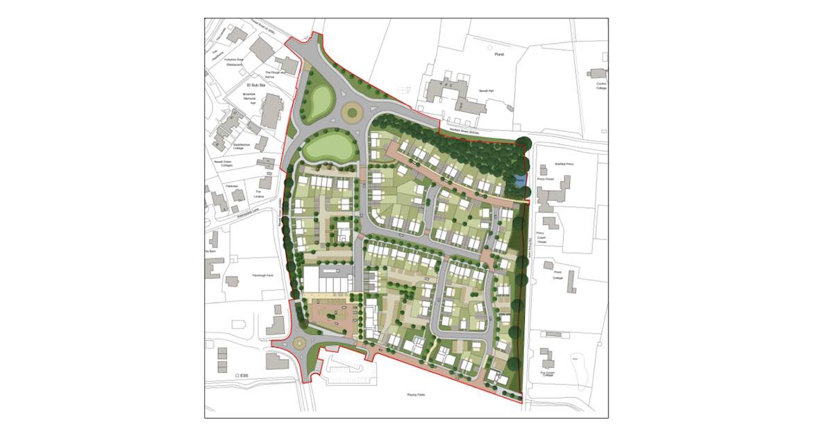
Outline plans for up to 150 homes at Warfield have been unanimously approved.
Bracknell Forest Council’s planning committee approved the plans by Harcourt Developments to build on a 7.47-hectare greenfield site at Priory Fields in Newell Green at its October 10 meeting.
Along with the homes, 35 per cent of which will be affordable, the scheme proposes a 750 sq m Class E district centre and two new roundabouts for access.
The site forms part of the Warfield strategic development site which is allocated for a mixed-use development of 2,200 homes.
The proposal was originally submitted as a full application but was switched to outline among a number of amendments since it was first proposed in 2022.
The team on the project includes Boyle & Summers on architecture, WSP on planning and Doyle Transport Planning as transport consultant.
© Thames Tap (powered by ukpropertyforums.com).
Sign up to receive our weekly free journal, The Forum here.








