Two hotly-disputed planning applications for a total of 182 homes look set for different fates when West Oxfordshire district councillors meet on Monday (March 17).
The council’s Uplands area planning sub-committee has been recommended to approve an outline application by Gleeson Land for up to 104 homes on a 5.1-hectare agricultural site east of Burford Road in Chipping Norton (see image above).
The site is close to a Romano-British rural settlement with Iron Age remains, which is a Scheduled Monument.
A total of 119 objections were made, many referring to the archaeological significance as well as concerns about infrastructure, traffic and flooding.
Visit https://publicaccess.westoxon.gov.uk/online-applications/simpleSearchResults.do?action=firstPage
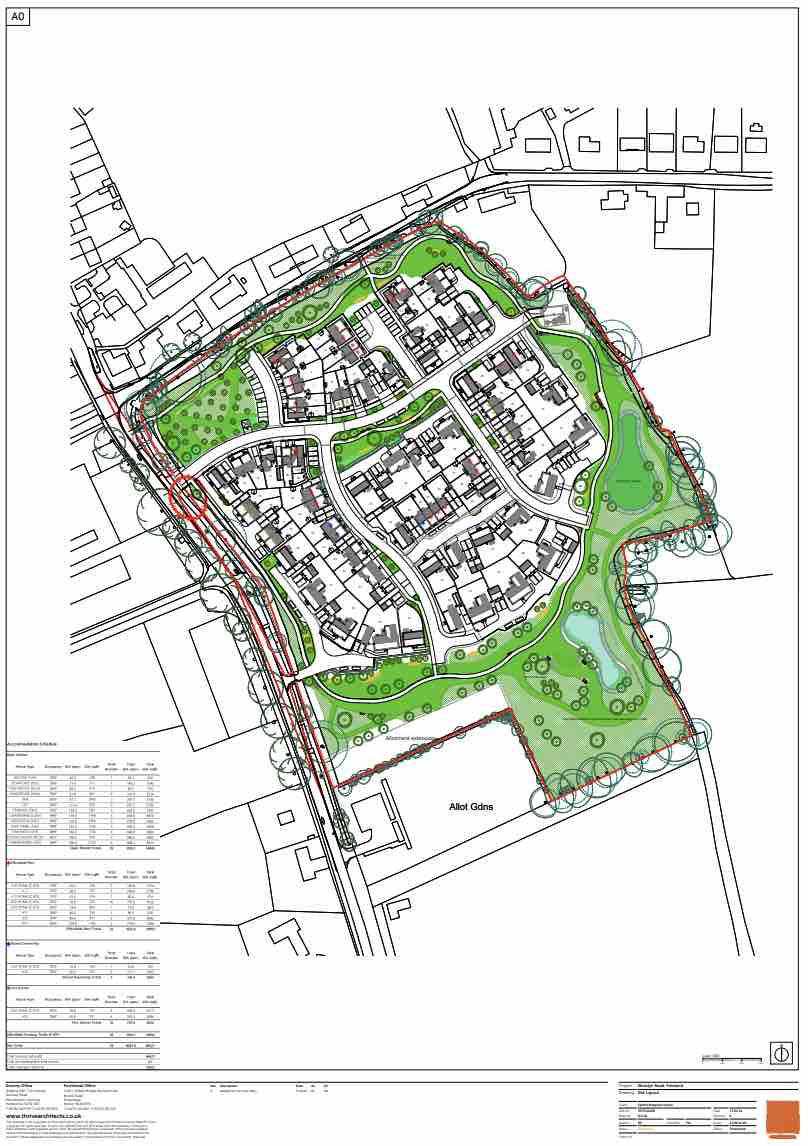
However, Spitfire Homes’ plans for 78 homes on a 5.35-hectare site east of Wroslyn Road, Freeland, Witney (see image below), have been recommended for refusal at the same meeting.
A previous application for 80 homes and a café was refused in April 2023 and the council received 354 letters of objection to the current version.
Officers recommend refusal due to harm to its setting, access concerns and biodiversity harm.
Visit: https://publicaccess.westoxon.gov.uk/online-applications/simpleSearchResults.do?action=firstPage

Screenshot
© Thames Tap (powered by ukpropertyforums.com).
Sign up to receive our weekly free journal, The Forum here.










