The Hounslow Planning Committee has unanimously approved the redevelopment of a site on the land south of Staines Road, north of Ascot Road and Clockhouse Lane, TW14 8RX.
The members who welcomed the proposals described the site as boarded up and an eyesore.
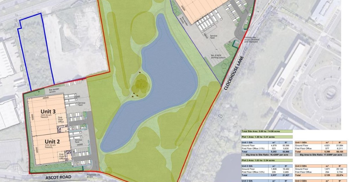
The proposal is for the redevelopment of the site and the erection of three units to provide flexible E(g)(iii), B2 and B8 uses with ancillary offices, associated access, servicing, parking, engineering/drainage works and associated works landscaping.
The proposal is not only for redevelopment but also for the creation of a highly sustainable site. It is designed to achieve a total cumulative savings of 109 per cent in Regulated Carbon Dioxide, an “Excellent” BREEAM rating, and an EPC rating of A+.
The development includes relocating the pond from the western end of the site to the centre as part of the greenbelt. The site is vacant. The proposal would improve the ecological situation on site by remediating contaminated land, removing invasive species, and taking ecological measures to protect biodiversity.
The applicant for this redevelopment project is Wrenbridge (FRELD Heathrow) LLP, with the architectural design being handled by CMP Architects.
© London West (powered by ukpropertyforums.com).
Sign up to receive our weekly free journal, The Forum here.








