Hounslow Planning Committee has approved a significant redevelopment project for Rivers Academy Feltham, focusing on modernising educational facilities.
The project involves two main elements: the demolition and replacement of outdated buildings and the construction of temporary accommodations. This initiative aims to enhance the learning environment and align with contemporary educational standards.
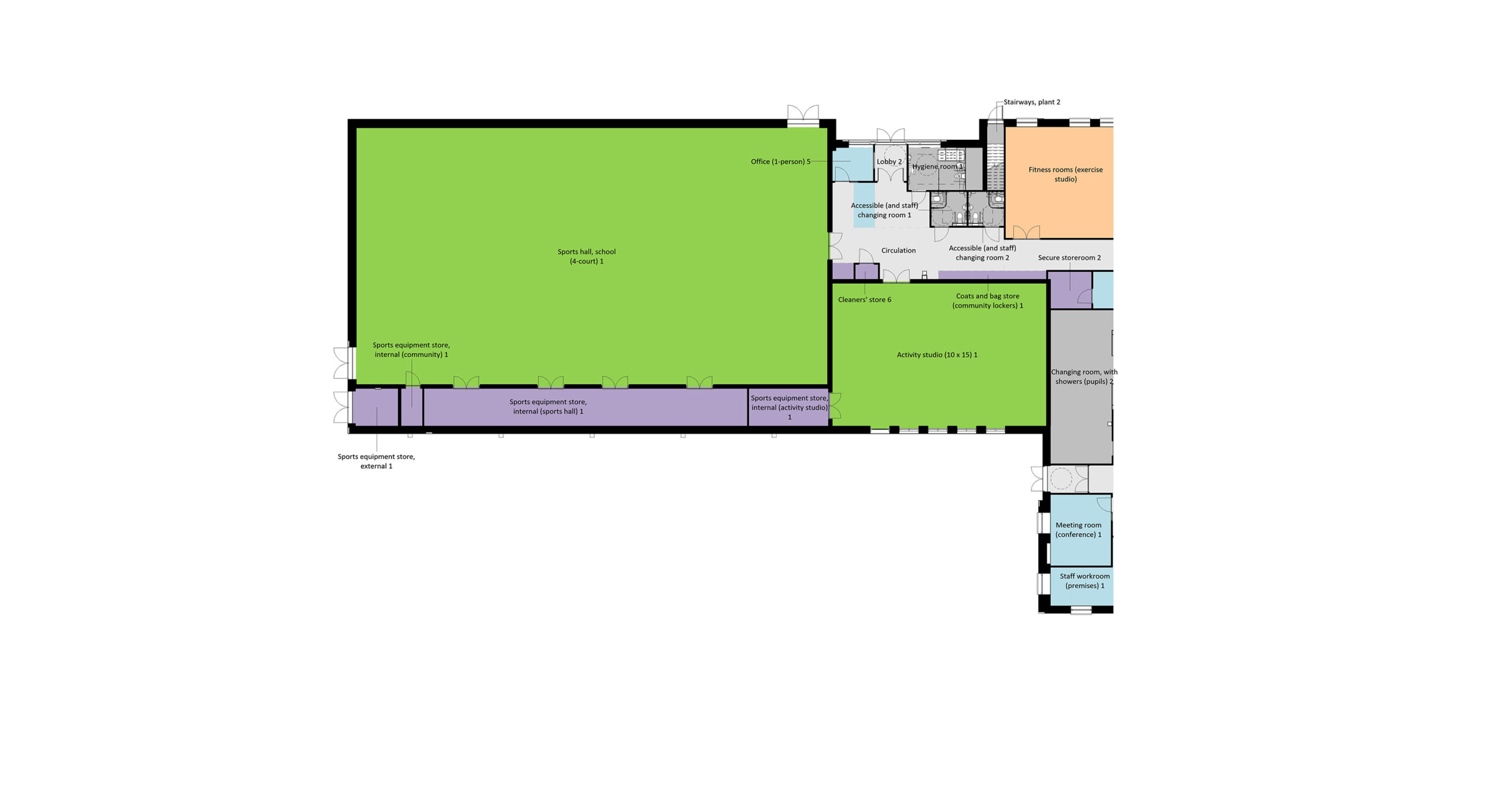
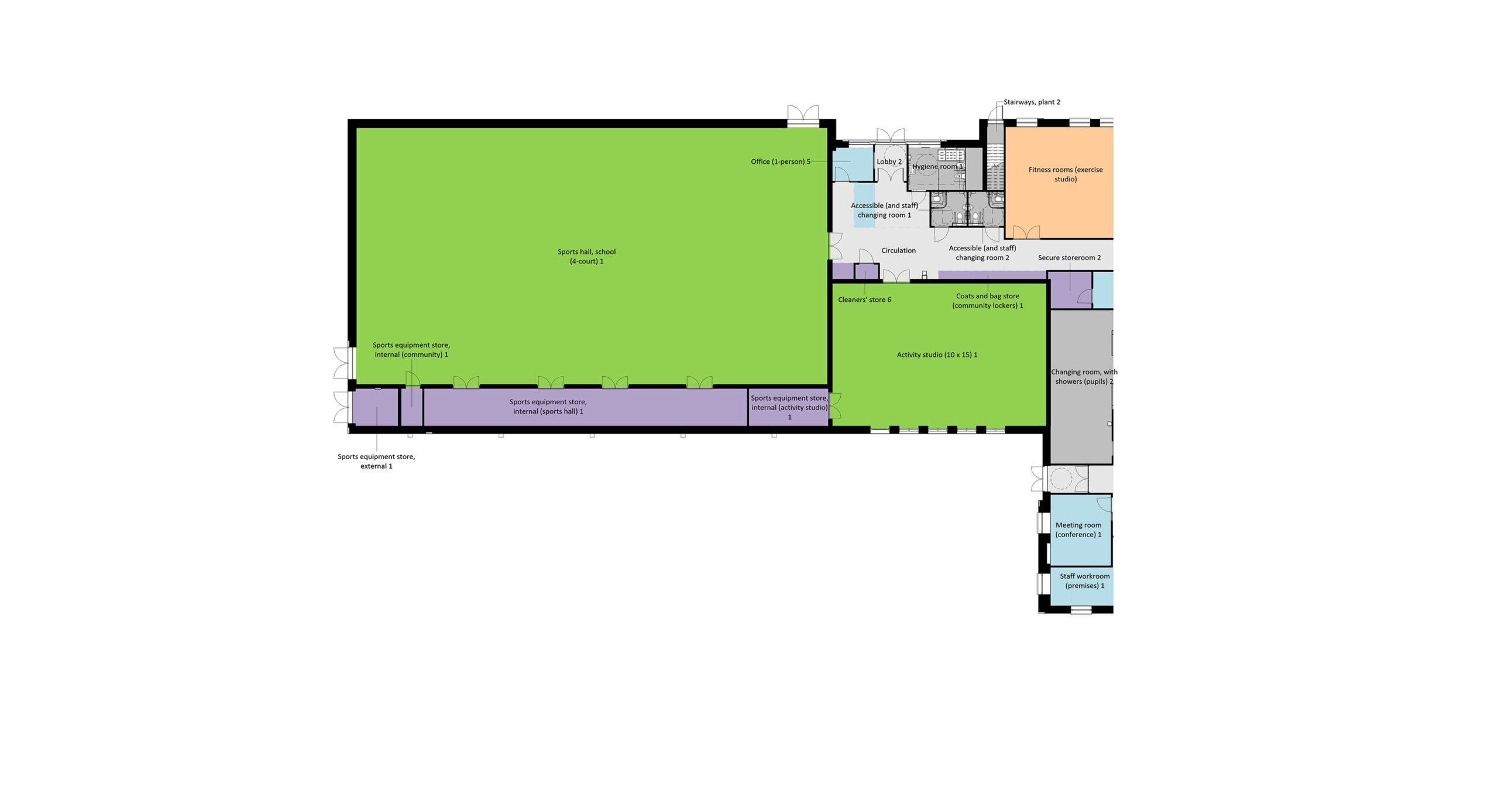
The redevelopment plan includes the erection of a new three-storey school building and a single-storey sports block. Five existing structures, identified as EFAA, EFAB, EFAC, EFAD, and EFAF, will be demolished due to their poor condition and inability to support modern teaching practices. Notably, EFAA, a main block constructed in 1935 and partially locally listed, is among those to be removed. The only building to be retained is EFAE, which will undergo minor refurbishments. This comprehensive overhaul is designed to improve access, landscaping, and associated infrastructure, ensuring a more efficient and sustainable campus.
To facilitate uninterrupted educational activities during construction, a three-storey prefabricated building will be erected on the existing school playing fields on Letchworth Avenue. This temporary structure will serve as classrooms for 153 weeks, allowing the leading school site on Tachbrook Road to undergo redevelopment. The temporary setup ensures that the academy remains operational, minimising disruption to students and staff.
The Department for Education (DfE) has appointed Bowmer + Kirkland as the main contractor for this ambitious project. The architects have adhered to a comprehensive set of design principles to create an inspiring and sustainable learning environment. Key features include a compact building footprint, energy efficiency with net-zero carbon operation, and the use of materials that promote a low acoustic environment and natural light. The design also emphasises a simple palette of robust brick and lighter panels, clustering of departments, and dedicated spaces for creative arts, SEND, and sixth form students.
This redevelopment aligns with Rivers Academy’s core principle of ‘self-fulfilment,’ aiming to open up student aspirations for future careers. By modernising the infrastructure, the project supports the academy’s vision of providing a high-quality educational experience in a sustainable and inspiring setting.
© London West (powered by ukpropertyforums.com).
Sign up to receive our weekly free journal, The Forum here.








